La meva tesi
CASA DE COLÒNIES I REFORMA DE NUCLI URBÀ A VILAPLANA
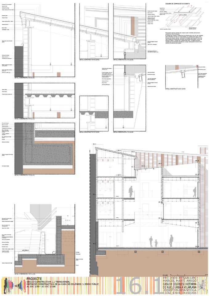
Des de la seva creació, el terme de Vilaplana va formar part del comtat de Prades, i anava junt amb el de l'Aliexar. Els primers textos escrits sobre la vila la citen amb el nom llatinitzat de "Villam Planam". Sembla que la seva repoblació va ser lenta i no fou fins al segle XIV quan el municipi va començar a tenir una certa importància. En el segle XVIII encara pertanyia a la senyoria del ducat de Cardona. El febrer de 1714 la vila va ser atacada per les tropes filipistes per haver acollit alguns seguidors del guerriler Carrasclet, molt popular encara en la cultura folklòrica de la zona. L'església parroquial és dedicada a la Nativitat. Es va construir entre els anys 1736 i 1739 sobre l'antic temple romànic. Actualment és d'estil barroc i per a la decoració s'utilitzen elements de l'antic temple, així com l'altar i les campanes. El campanar es va afegir l'any 1744. Dins del temre municipal s'han trobat algunes restes romanes i també una important necròpolis del neolític. També hi ha pintures rupestres. La principal activitat econòmica és l'agricultura; destaquen els cultius d'olivers, avellaners i ametllers. ESTAT ACTUAL La situació actual del centre de Vilaplana presenta uan configuració de petits patis aïllats, antigament horts, que actualment tenen un ús restringit a la propietat a la qual pertanyen i que a més, degut a les construccions complementàries que han anat sorgint durant aquest últim segle, queden colgats, pràcticament no disfruten de llum natural directa i resten mal ventilats. Totes aquestes construccions es recolzen sobre elements de cert interès com són l'Església i la petita capella que l'acompanya. La saturació d'aquestes petites peces impedeix l'observació de tots els elements que constitueixen el Temple. Una de les intencions del projecte és oxigenar la part central de l'illa i donar lloc a un espai unificat i comunicador de tots els elements que hi intervenen. Aquest procés s'ha dut a terme mitjançant una anàlisi de totes les peces que componen aquest interior d'illa i seleccionant les que, ja sigui per la seva mala col.locació o per la seva baixa rellevància arquitectònica, impedeixen el correcte funcionament de l'illa, i prescindir-ne. EL PROJECTE El projecte de casa de colònies i reforma urbana a Vilaplana és una intervenció que consisteix en: -Un edifici de nova planta situat a la parcel.la ara ocupada per la propietat del carrer Major nº5, i que aprofita l'antiga façana principal de la casa. Aquest edifici complirà les funcions de casa de colònies i alberg de joventut amb una capacitat per a 52 ocupants i comptarà amb un pati privat annex a la nova plaça de l'Església. -La reforma de la primera i segona planta de la rectoria, transformant l'espai en una sala d'exposicions i punt d'informació del territori. Aquest espai també donarà accés al campanar i servirà de connexió peatonal pública entre el carrer Major i el carrer d'Àngel Guimerà a través de la plaça de l'Església. -La rehabilitació de l'escala del campanar, actualment molt deteriorada, hi donarà un més fàcil accés i permetrà recuperar, com a recinte expositori complementari al de la rectoria, un espai actualment en desús a l'interior de l'església: el cor. -La nova plaça de l'Església funcionant com a nou eix de circulació i vertebrador serà un nou centre d'interès urbà atesa la privilegiada situació en què es troba, just al costat de l'Església i envoltant la cúpula de la capella fins ara amagada per les edificacions contigües.



























